一、安裝前輔材準備
1、機組電源線(強電)選擇
烘干設備的電源配線,必須滿足室外機、室內機及輔助設備(輔助電加熱、室內循環風機)額定總電流值*1.25,電壓降不得超過額定電壓2%。機組電源配線要求由專業電氣技術人員進行。電器設備安裝中選用的導線、電纜及電氣附件,必須使用經國家強制認證的產品。
備注:若為單相電,火線和零線一樣粗,若為三相電,零線可比火線小一個規格。

2、冷凝水管及電工套管選擇
(1)冷凝水管材質要求:
無鉛配方飲水用PVC-U管材;耐化學腐蝕性強,不污染水質,不生銹,使用壽命長;管道內壁光滑,摩擦系數小,提高輸水能力,降低能耗;良好密封性能;機械強度大,耐水壓強度,耐沖擊強度好。
(2)電工套管材質要求:
內外壁光滑,穿線阻力小;難燃,絕緣性好,耐腐蝕、耐老化,使用壽命長;扛沖擊性能強,機械強度高,能承受高電壓;無味,無毒,使用獨特輔助劑,避免白蟻、蟲鼠破壞。
3、烘干房建設要求
◇應有良好的隔熱性能,推薦使用聚氨酯發泡,厚度應根據使用時當地最低環境溫度及最高烘干房溫度限定,但均不低于50mm;聚氨酯發泡密度≥35kg/m³,庫板不應有明顯的變形;
◇烘干房墻體滿足隔熱防火要求,建材符合耐火等級;
◇烘干房接縫應均勻嚴密,接縫錯位不大于1.5 mm;
◇烘干房各接口處應密封良好,不應有明顯的熱氣泄漏現象。

4、室內循環風機要求
使用過程中,需額外配置室內循環風機,所選風機應滿足以下要求:
◇風機需采用高溫高濕軸流風機,防護等級不得低于IP54級,絕緣等級不低于F級;
◇在無特殊情況下,優先使用轉速為1450r/min的高溫高濕風機;
◇具體風量應根據物料物理條件合理設計。
5、安裝、調試前應準備好所需工具
二、安裝
1、將內外機移到指定位置;安裝空間、固定要求如下:

備注:機組安裝固定過程中,應注意以下幾點:
◇5P及以上主機必須做基礎,可以采用槽鋼或水泥基礎,主機附近最后做排水溝,以方便主機冷凝水正常排放;
◇機組采用膨脹螺栓對地加固時,所有緊固件應擰緊適度,同一類螺絲露出螺帽 的長度基本保持一致。
2、新風門、排濕風機安裝
安裝新風門、排濕風機時應注意以下幾點:
◇新風口應安裝在內機后,保證新風進入烤房先經內機加熱送入物料室,降低冷風對物料溫度波動影響;
◇ 排濕口安裝熱風經過物料表面后回風回來處,此處濕度最集中,排濕效果明顯;
◇新風門、排濕風機應固定牢固。
3、室內外連接管連接
◇將內機閥門全部打開,放掉里面的氮氣;
◇打開內機面板,取出室內外連接管;
◇將兩根連接管拉直;(注意使用力度,不可將銅管損壞);
◇如果是單系統分體式烘干機,按照“大管配大截止閥,小管配小截止閥”的原則將室外機與室內機進行氟管連接并擰緊;
◇如果是多系統分體式烘干機,還必須保證同一組大小連接管連接的是同一系統;例如“一系統大截止閥”、“一系統小截止閥”必須接的是同一臺內機。
4、內機抽真空、放氟進內機
室內外連接管連好后,開始抽真空,遵循以下原則:
◇用扳手擰開內機大截止閥頂針口閥帽;
◇將氟利昂充注軟管連接于內機大截止閥頂針處;(注意,充注軟管必須自帶頂針
◇將充注軟管接頭與真空泵連接;
◇開動真空泵抽真空,抽真空約30分鐘;
◇確認壓力表指針是否指在-1.0×105pa(-76cmHg)處,抽真空完成后,完全關緊歧管閥手柄,停下真空泵,等待5min(要求充注軟管上配帶壓力表);
◇5min后,如壓力還是指在-1.0×105pa(-76cmHg)處,證明真空良好,稍微打開外機大截止閥,以平衡系統壓力,防止拆管時空氣進入,拆下軟管后再完全打開外機大截止閥,外機小截止閥;
◇上緊各閥帽。
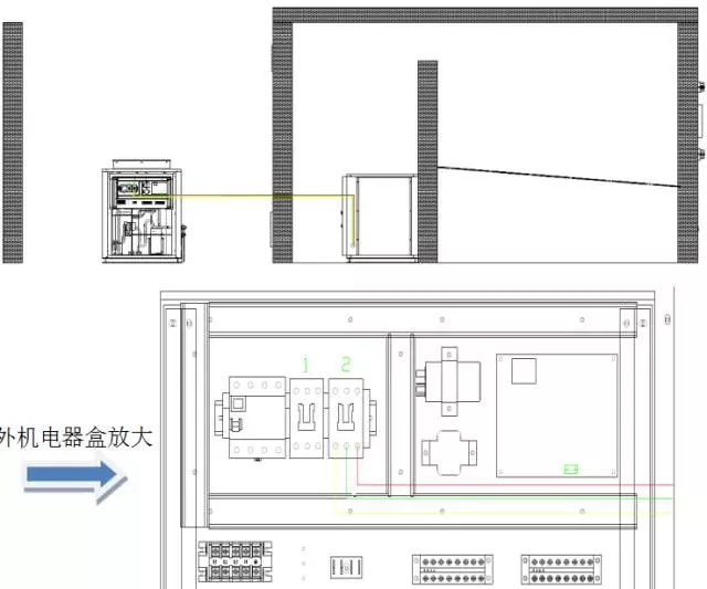
5、接線
室內機接線示意圖如下:

特別注明:該流程是以三相電源形式為基礎制作,如您使用的是單相電源形式機組,僅能借鑒步驟。
◇如圖,在外機電器盒內2號交流接觸器下接口接線,L1、L2、L3分別對應黃、綠、紅三種線型,接線牢固;
◇如圖,外機2號交流接觸器接好后,將線經外機接線孔穿出,穿過墻壁后與內機按顏色對應接好,采用防水電膠布密封處理;(有條件的話,與內機對接時采用搪錫焊接方式)。
排濕風機接線示意圖如下:

◇如圖,在外機電器盒內1號八位端子排下接口接線,L1、N分別對應紅、藍兩種線型,接線牢固;
◇如圖,外機1號八位端子接好后,將線經外機接線孔穿出,穿過墻壁后與排濕風機按顏色對應接好,采用防水電膠布密封處理;(有條件的話,與內機對接時采用搪錫焊接方式)。
溫濕度接線示意圖如下:


◇如圖,在外機電器盒內2號八位端子排下接口接溫度傳感器線,接線牢固;
◇如圖, 溫濕度傳感器固定架應固定在墻上,固定牢固;
◇如圖, 溫濕度傳感器固定架高度在1.5m比較合適;
◇如圖, 溫濕度傳感器固定在固定架上,固定牢固。
電源接線示意圖如下:

◇如圖,將電源線接在外機電器盒內的電源端子排下接口,黃、綠、紅、藍、黃綠相間五種線型經過大壓線夾后對應接在L1、L2、L3、N、地線接口,接線牢固;
◇以上步驟安裝完成后,請仔細核對一遍,確認無誤后,機組通電,手持機組顯示屏進行調試。
三、調試
1、狀態檢測
機組共有三個狀態:開機、關機及暫停,調試時先將機組設置成關機狀態。
2、模式選擇
機組默認雙系統模式,如果使用的是單系統分體式烘干機組,請按照以下步驟調成單系統模式(如未碰到此問題,此步驟可省略):
◇長按“設置鍵”3s,進入“C1”參數,按“下鍵”,調至“h0”參數。如圖;
◇按“確認鍵”,待“h0”參數子參數“11”閃動后,按“上鍵”將參數“11”調至“16”后,按“確認鍵”,進入二級參數;
◇持續按“上鍵”至 “d2”參數按“確認鍵”,子參數“1”閃動后,按“下鍵”將參數“1”調至“0”后,按“確認鍵”,再按“查詢鍵”返回主界面;模式選擇完畢。
3、階段設定
機組共有10個階段可設定,每個階段可獨立控制溫度、濕度、階段時間、排濕時間,應根據物料的不同合理選擇階段,在這里以一個階段做描述:
◇短按“設置鍵”,階段1閃爍,按“右鍵”進入階段1各參數設置;
◇按“右鍵”后,階段1溫度在閃爍,按“上鍵”、“下鍵”實現階段1溫度的加減,將溫度調至75℃。如下圖:
◇溫度設定好后,再按“右鍵”,階段1濕度在閃爍,按“上鍵”、“下鍵”實現階段1濕度的加減,將目標濕度設置為5%;
◇濕度設定好后,再按“右鍵”,階段1目標時間在閃爍,按“上鍵”、“下鍵”實現階段1目標時間的加減,將時間調至99:99(階段目標99:99代表99小時99分鐘);
◇階段時間設定好后,再按“右鍵”,階段1排濕運行在閃爍,按“上鍵”、“下鍵”實現階段1排濕運行的加減,將排濕運行調至03(排濕運行03代表排濕運行3分鐘);
◇排濕運行定好后,再按“右鍵”,階段1排濕間隔在閃爍,按“上鍵”、“下鍵”實現階段1排濕間隔的加減,將排濕間隔調至01(排濕間隔01代表排濕停止1分鐘);
◇排濕間隔定好后,再按“右鍵”,階段1在閃爍,按“上鍵”調至階段2,持續按“右鍵”至階段2階段時間,將階段2階段時間調至00:00,代表取消階段2;
◇按上述操作,依次將階段3、4、5、6、7、8、9、10階段時間均調至00:00,代表只保留階段1;(如果需要其他階段,應合理選擇);
以上操作均設置完畢后,進入下一步。

4、運行檢查
(1)檢查循環風機正反轉
◇長按開機鍵3s,機組開機啟動,待顯示屏內風機符號顯示后,進入烤房檢查風機正反轉;
(2)檢查機組運行
◇室內風機檢查正常后,關注機組運行,隨著烤房溫度提升,重點關注環境溫度、管道溫度、排氣溫度技術參數;
◇以上幾個參數長按“查詢鍵”,01代表環境溫度,02代表盤管溫度,06代表排氣溫度;
調試結果遵循以下要求:
◇根據環境溫度的不同,排氣溫度-當前烤房溫度=20-40℃;
◇根據當前烤房溫度的不同,環境溫度-管道溫度=2-10℃;(烤房溫度越高,溫差越小)
(3)檢查排濕風機、新風門運行
◇當當前烤房溫度大于50℃時(此為排濕溫度限定,如果想在更低烤房溫度進行排濕,請設置C30參數),檢查顯示屏排濕風機符號是否顯示(滿足溫度限定的同時,還需滿足①當前濕度大于目標適度②處于排濕運行時間3min內);
◇當排濕風機符號顯示后,檢查排濕風機實際是否運行;
◇當排濕風機實際運行時,新風門是否打開;
◇當排濕風機實際運行3min后,排濕風機是否停止運行;
◇當排濕排濕風機停止運行后,新風門是否關閉。

5、溫度檢查
◇壞境溫度≥15℃,烤房溫度要求≥70℃以上;
◇10≤壞境溫度≤15℃,烤房溫度要求≥65℃以上;
◇5℃≤壞境溫度≤10℃,烤房溫度要求≥60℃以上;
◇0℃≤壞境溫度≤5℃,烤房溫度要求≥57℃以上;
◇-5℃≤壞境溫度≤0℃,烤房溫度要求≥54℃以上;
以上技術要求確定無誤后,開始試烘。





















